- お問い合わせ先
- 担当者:髙橋 電話番号: 06-6228-9204
神戸メリケンビル
-
物件概要
所在地 兵庫県神戸市中央区海岸通1-1-1 交通 JR神戸線『元町』駅 徒歩5分、阪神本線『元町』駅 徒歩5分、神戸市営地下鉄海岸線『旧居留地・大丸前』駅 徒歩4分 構造・規模 SRC造 4階 用途 事務所 竣工 1918年5月 エレベーター 空調 個別 駐車場 延床面積 1126.92坪(3725.37㎡) 施工 大阪橋本組 警備 管理人常駐
募集条件
階数 契約面積 賃料 共益費 敷金 入居時期 1 18.77坪
(62.06㎡)相談 相談 12ヶ月 相談 物件詳細
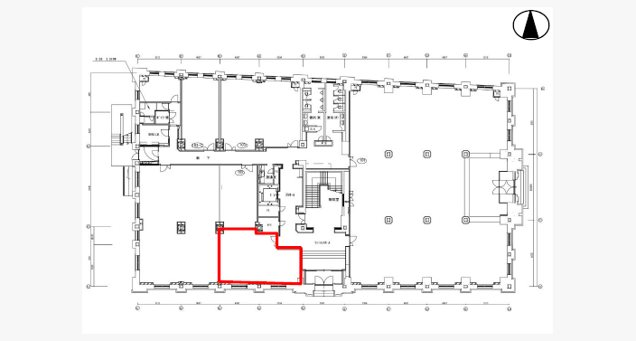
募集階 1 契約面積 18.77坪
(62.06㎡)賃料 相談 共益費 相談 敷金 12ヶ月 入居時期 相談 用途 事務所 天井高 --- 平面図


- お問い合わせ先
- 担当者:髙橋
電話番号: 06-6228-9204
〒541-0044 大阪市中央区伏見町4丁目4番9号 淀屋橋東洋ビル 4階
取引態様:媒介

■築107年の歴史的建造物 ■1994年耐震改修工事済