- お問い合わせ先
- 担当者:石井 電話番号: 06-6228-9204
フェスタ立花北館
-
物件概要
所在地 兵庫県尼崎市七松町1-2-1 交通 JR神戸線『立花』駅 徒歩2分 構造・規模 SRC造 地上14階 地下1階 用途 事務所 竣工 2000年5月 エレベーター 4基 空調 個別空調 駐車場 機械式40台 (組合と契約、空状況確認要) 警備 機械警備
募集条件
階数 契約面積 賃料 共益費 敷金 入居時期 3 35.55坪
(117.51㎡)相談 相談 12ヶ月 即日 6 76.18坪
(251.84㎡)相談 相談 12ヶ月 即日 物件詳細
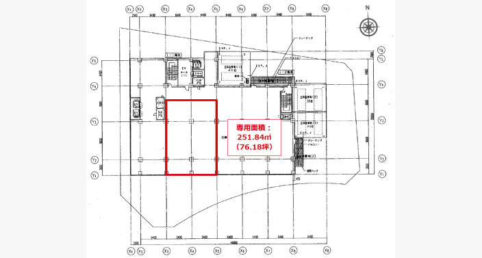
募集階 6 契約面積 76.18坪
(251.84㎡)賃料 相談 共益費 相談 敷金 12ヶ月 入居時期 即日 用途 事務所 天井高 --- 備考
-
(601-B号室)
平面図


- お問い合わせ先
- 担当者:石井
電話番号: 06-6228-9204
〒541-0044 大阪市中央区伏見町4丁目4番9号 淀屋橋東洋ビル 4階
取引態様:媒介
-

■『JR立花』駅前大規模再開発ビルの事務所区画です ■3F:事務所仕様渡し(OAフロア・LED照明)