- お問い合わせ先
- 担当者:髙橋 電話番号: 06-6228-9204
大阪四ツ橋新町ビル
-
物件概要
所在地 大阪府大阪市西区新町1-4-24 交通 地下鉄四つ橋線『四ツ橋』駅 徒歩1分、地下鉄長堀鶴見緑地線『心斎橋』駅 徒歩2分、地下鉄御堂筋線『心斎橋』駅 徒歩4分 構造・規模 SRC造 地上9階 地下2階 用途 事務所 竣工 1986年8月 エレベーター 乗用(11人乗)3基 空調 個別空調 駐車場 あり 延床面積 3006.83坪(9939.92㎡) 施工 清水建設株式会社 募集条件
階数 契約面積 賃料 共益費 敷金 入居時期 4 63.98坪
(211.50㎡)相談 232,650円(税抜)/3,636円/坪(税抜) 12ヶ月 2026年5月以降 5 228.00坪
(753.71㎡)相談 829,081円(税抜)/3,636円/坪(税抜) 12ヶ月 2026年5月以降 6 42.33坪
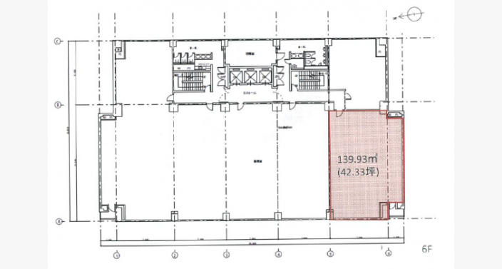
(139.93㎡)相談 153,912円(税抜)/3,636円/坪(税抜) 12ヶ月 2025年6月以降 物件詳細
募集階 6 契約面積 42.33坪
(139.93㎡)賃料 相談 共益費 153,912円(税抜)/3,636円/坪(税抜) 敷金 12ヶ月 入居時期 2025年6月以降 用途 事務所 天井高 2,450mm 床仕様 OA(50㎜) 平面図


- お問い合わせ先
- 担当者:髙橋
電話番号: 06-6228-9204
〒541-0044 大阪市中央区伏見町4丁目4番9号 淀屋橋東洋ビル 4階
取引態様:媒介
