- お問い合わせ先
- 担当者:高橋 電話番号: 06-6228-9204
住宅金融支援機構・矢野ビル
-
物件概要
所在地 大阪府大阪市中央区南本町4-5-20 交通 地下鉄御堂筋・中央・四つ橋線『本町』駅 徒歩2分 構造・規模 SRC造・S造 地上14階 地下3階 用途 店舗、事務所 竣工 1994年2月 エレベーター 3基 空調 セントラル空調 駐車場 機械式駐車場 延床面積 2707.31坪(8949.8㎡) 警備 機械警備
募集条件
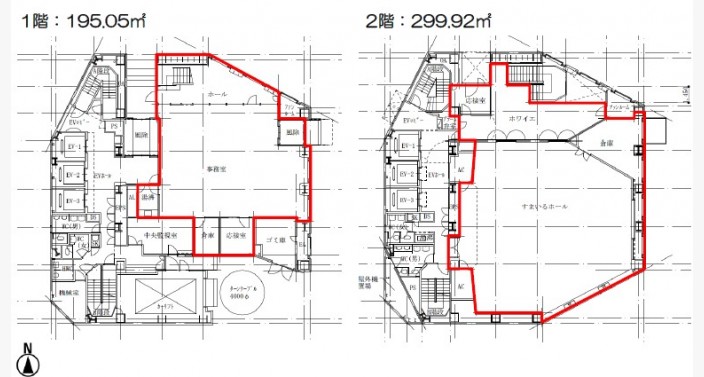
階数 契約面積 賃料 共益費 敷金 入居時期 1・2 149.72坪
(494.97㎡)相談 相談 12ヶ月 相談 4 110.91坪
(366.66㎡)相談 相談 12ヶ月 2025年12月以降 5 109.73坪
(362.76㎡)相談 相談 12ヶ月 即日 物件詳細
募集階 1・2 契約面積 149.72坪
(494.97㎡)賃料 相談 共益費 相談 敷金 12ヶ月 入居時期 相談 用途 店舗、事務所 天井高 --- 契約形態 普通賃貸借契約 備考
-
現状有姿
2026年5月ビル名変更予定
平面図


- お問い合わせ先
- 担当者:高橋
電話番号: 06-6228-9204
〒541-0044 大阪市中央区伏見町4丁目4番9号 淀屋橋東洋ビル 4階
取引態様:媒介
-

■大阪メトロ御堂筋線・中央線・四つ橋線『本町』駅徒歩2分