- お問い合わせ先
- 担当者:岩本 電話番号: 06-6228-9204
ONEST京都烏丸スクエア
-
物件概要
所在地 京都市中京区烏丸通六角下る七観音町634番地 交通 阪急京都線『烏丸』駅 徒歩4分、地下鉄烏丸線『四条』駅 徒歩4分、地下鉄烏丸線・東西線『烏丸御池』駅 徒歩5分 構造・規模 SRC造 地上8階 地下1階 用途 事務所 竣工 1986年11月 エレベーター 乗用3基、非常用(人荷用)1基 空調 個別 駐車場 機械式駐車場
募集条件
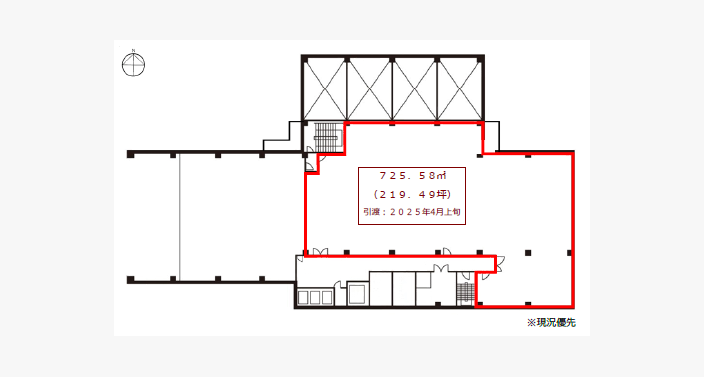
階数 契約面積 賃料 共益費 敷金 入居時期 3 219.49坪
(725.58㎡)相談 相談 相談 即日 物件詳細
募集階 3 契約面積 219.49坪
(725.58㎡)賃料 相談 共益費 相談 敷金 相談 入居時期 即日 用途 事務所 天井高 --- 契約形態 定期建物賃貸借契約 備考
-
貸会議室あり(ホール、大小会議室)
CASBEE不動産認証取得(Aランク)
平面図


- お問い合わせ先
- 担当者:岩本
電話番号: 06-6228-9204
〒541-0044 大阪市中央区伏見町4丁目4番9号 淀屋橋東洋ビル 4階
取引態様:媒介
-

■2023年9月 外壁リニューアル工事実施済み ■「烏丸通」に面し、3線4駅が徒歩圏内 (阪急京都線『烏丸』駅・地下鉄烏丸線『四条』駅徒歩4分、地下鉄烏丸線、東西線『烏丸御池』駅徒歩5分)